BIFAMILIARE NUOVA A BRUGINE

BIFAMILIARE NUOVA A BRUGINE

Descrizione

Situata a Brugine, comoda a raggiungere facilmente tutti i servizi, vi proponiamo una porzione di bifamiliare in fase di costruzione.

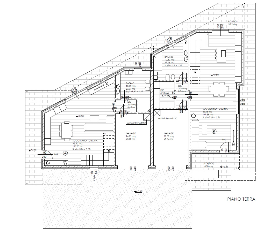
L'abitazione è sviluppata su due livelli e così distribuita: al piano terra l'ingresso porta direttamente nella zona living, dal soggiorno con angolo cottura è possibile uscire direttamente all'esterno, proseguendo verso il disimpegno accediamo al bagno/lavanderia e al garage comunicante all'abitazione, al piano primo tre camere da letto ed il secondo bagno

L'APE SARA'DISPONIBILE NON APPENA L'IMMOBILE VERRA' ULTIMATO

Tutto ben distribuito nei suoi 100 mq circa, permettendovi così di godere appieno ogni singolo locale.

Potrete inoltre godervi un giardino tutto per voi, per rilassarvi insieme alla famiglia o con gli amici, far giocare i bimbi in tutta tranquillità.

Questa soluzione abitativa è realizzata con TECNOLOGIE DI ULTIMA GENERAZIONE a basso consumo energetico, ed è dotata di:
- CLASSE ENERGETICA PREVISTA A4
- riscaldamento a pavimento,
- ventilazione meccanica controllata,
- impianto fotovoltaico

Soluzione assolutamente da non perdere se state cercando proprio queste caratteristiche, allora non aspettate, chiamateci e saremo felici di approfondire con voi ogni aspetto.

L'indirizzo indicato nell'annuncio ed il puntatore visualizzato nella mappa per motivi di privacy sono solamente indicativi.

Siamo a vostra disposizione per fornirvi ulteriori informazioni
Potete scriverci a info@lindustriale.com chiamarci o inviarci un messaggio su whatsapp

PAMELA cel. 3393568237

L'INDUSTRIALE Agenzia Immobiliare di Zecchin Pamela
via Castello n. 49A
35028 Piove di Sacco PD
tel. 0495841160

Vuoi vendere il tuo immobile?
Non esitare a contattarci, daremo massima visibilità al tuo immobile, SENZA ALCUNA SPESA, inserendolo all’interno di tutte le nostre piattaforme:
- Pubblicazione nei principali Portali Online e nei nostri canali Social
- Inserimento all’interno del nostro sito internet www.lindustriale.com
- Presenza nelle nostre Vetrine

Camere
3
Bagni
2
Mq
0

Ambienti

Soggiorno angolo cottura
Ripostigli 1
Terrazzi 2
Giardino

Livelli & comfort

Livelli Piano terra , Primo piano
Aria condizionata
Pannelli fotovoltaici
Riscaldamento autonomo
Riscaldamento a pavimento
Ingresso indipendente
Porta blindata

Contattaci