BIFAMILIARE NUOVA A BRUGINE

BIFAMILIARE NUOVA A BRUGINE

Descrizione

Tra le varie soluzioni presenti nel mercato, oggi vi proponiamo una porzione di bifamiliare unica nel suo genere che attirerà sicuramente la vostra attenzione situata a Brugine.

L'immobile è in costruzione ed è possibile prenotando ora personalizzare le finiture a proprio piacimento.

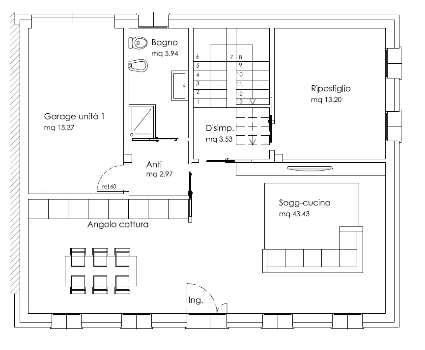
Internamente gli spazi sono ampi e ben suddivisi e comprendono un' ampia zona living di oltre 43 mq, proseguendo attraverso il disimpegno raggiungiamo un ripostiglio da adibire anche a camera, bagno e garage collegato.

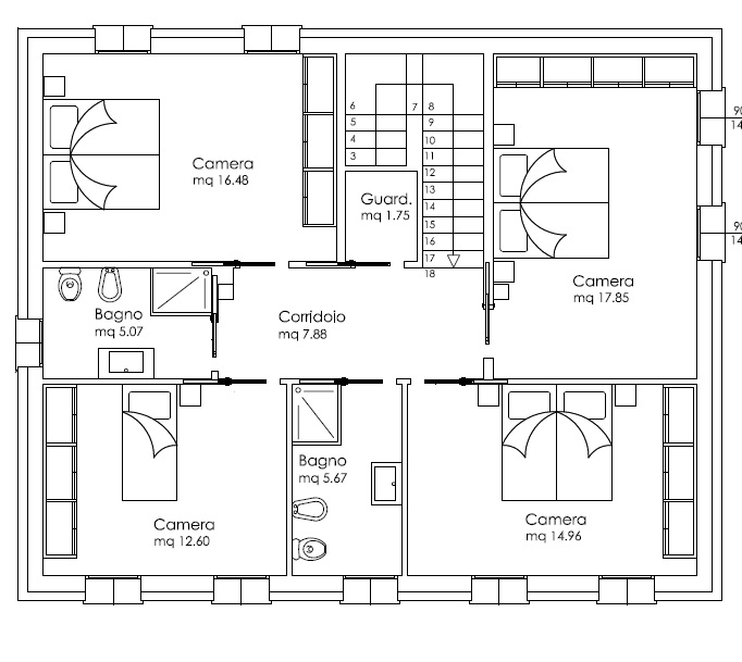
Al piano secondo ben 3 camere matrimoniali ed una quarta camera doppia, a completare il piano due bagni ed un ripostiglio.

Infine, la casa dispone di un comodo scoperto di proprietà di 570 mq circa.

Le dotazioni presenti in questa soluzione abitativa sono molte e nello specifico:
-Acqua calda sanitaria con pompa di calore e accumulo da 160 litri
-Ventilazione meccanica controllata
-Impianto fotovoltaico da circa 6 kWp
-Pompa di calore canalizzata per riscaldamento e raffrescamento

Non perdete l'opportunità di vedere con i vostri occhi questa meravigliosa soluzione abitativa, vi basterà chiamarci per fissare un appuntamento e saremo felici di accompagnarvi.

L'indirizzo indicato nell'annuncio ed il puntatore visualizzato nella mappa per motivi di privacy sono solamente indicativi.

Siamo a vostra disposizione per fornirvi ulteriori informazioni
Potete scriverci a info@lindustriale.com chiamarci o inviarci un messaggio su whatsapp


PAMELA cel. 3393568237

L'INDUSTRIALE Agenzia Immobiliare di Zecchin Pamela
via Castello n. 49A
35028 Piove di Sacco PD
tel. 0495841160

Vuoi vendere il tuo immobile?
Non esitare a contattarci, daremo massima visibilità al tuo immobile, SENZA ALCUNA SPESA, inserendolo all’interno di tutte le nostre piattaforme:
- Pubblicazione nei principali Portali Online e nei nostri canali Social
- Inserimento all’interno del nostro sito internet www.lindustriale.com
- Presenza nelle nostre Vetrine

Camere
4
Bagni
3
Mq
165

Ambienti

Soggiorno angolo cottura
Ripostigli 1
Giardino
Garage 1

Livelli & comfort

Livelli Piano terra , Primo piano
Aria condizionata
Pannelli fotovoltaici
Riscaldamento autonomo
Riscaldamento a pavimento
Riscaldamento termopompa
Ingresso indipendente
Numero accessi carrai 1
Porta blindata

Contattaci